Home
Plans/Designs
Completed Homes
Blog
Build with us
Our Story
Track Your Build
Reviews
Contact
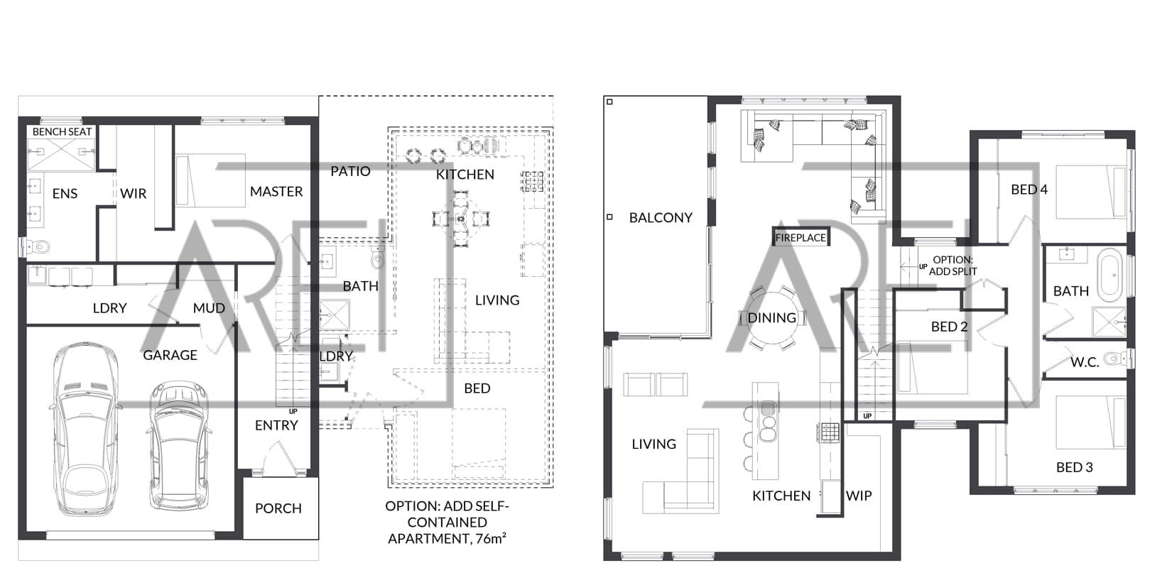
ADI3
Double storey, four bedroom home design
Back to Search
1. Choose Floorplan
ADI1
ADI2
ADI3
ADI4
ADI5
4
2
2
2
13.4m
15.4m
Total Area :
281 sqm
2. Choose Facade
ADI3 Render 1
ADI3 Render 2
ADI3 Render 3
Build with us